2区画好評分譲中【土地/建築条件付】箕面市箕面7丁目

【土地(建築条件付)】

■物件種別/土地
■所在地/箕面市箕面7丁目
■交通/阪急箕面線「箕面」駅徒歩9分
■総区画数/2戸
■販売区画数/2戸
■販売価格/1号地_4,280万円 2号地_4,080万円
■土地面積/1号地_150.29㎡(約45.5坪) 2号地_150.29㎡(約45.5坪)
■土地権利/所有権
■土地状況/更地
■地目/宅地
■用途地域/第一種低高層住居専用地域
■高度地区/第一種高度地区
■建ぺい率/60%
■容積率/150%
■接道/北西側幅員約4.6mの公道に約12.7m接道
南西側幅員約4.6mの公道に約15.7m接道
■私道負担/無
■設備/上下水道(公営)・都市ガス(大阪ガス)
■建築条件/有
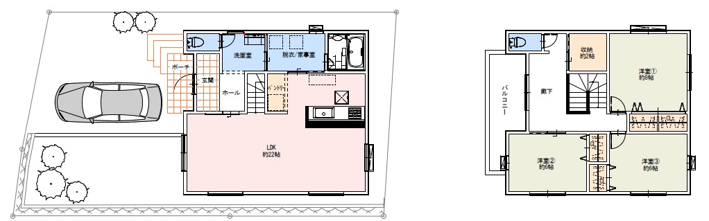
■建築プラン建物面積/(参考プラン)1号地_約104.33㎡ 2号地_約114.69㎡
■引渡時期/相談
■取引態様/売主

※ 建築条件付き土地/土地売買契約締結後、3ヶ月以内売主と建築請負契約を締結することを条件とし、期間中に住宅を建設しないことが確定したとき、または住宅の建築請負が成立しなかった場合には土地売買契約は白紙となり、受領した金銭は全額お返しいたします。

(最終更新日2026年2月11日)

  • ※ 図面と現況が異なる場合は、現況を優先とします。
  • ※ 掲載物件は成約済み・売却中止となる場合があります。

資料請求・お問い合わせCONTACT

ご相談・ご質問等ございましたら
お気軽にお問い合わせください。

           

Tel.072-728-2611営業時間 9:00~19:00 定休日 水曜日

資料請求・
お問い合わせフォーム